川口市青木二丁目戸建

3,999万円

埼玉県川口市青木2丁目15-23

埼玉高速鉄道「川口元郷」駅徒歩18分

京浜東北線「川口」駅バス12分「青木三丁目」停歩4分

価格
3,999万円
間取り
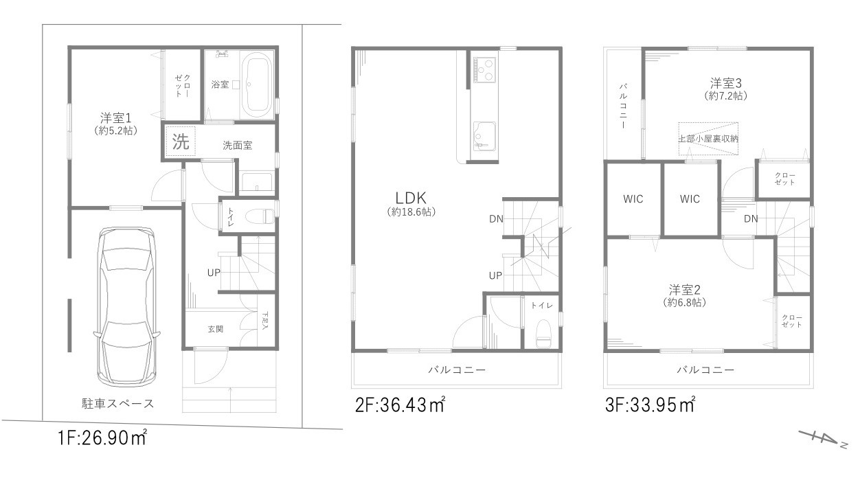
3LDK
土地面積
61.01㎡
所在地
埼玉県川口市青木2丁目15-23
交通

埼玉高速鉄道川口元郷」駅 徒歩18分

京浜東北線川口」駅 バス12分 「青木三丁目」 停歩4分

建物面積
97.28㎡
築年月
2017年11月(築8年)

物件の特徴

  • 浴室乾燥機

セールスポイント

川口元郷駅周辺への引っ越しをお考えなら「川口市青木二丁目戸建」。坂道がなく普段の移動も負担がかかりにくい平坦地です。建物面積97.28平方メートルですので快適な生活ができます。こちらの中古一戸建には浄水器付ですので水道水の品質も安心です。当社では川口市に特化した不動産情報をご紹介しております。地域情報などにも詳しいので、ぜひお気軽にお問い合わせください。

ポイント

LDK18畳以上 食器洗乾燥機 浄水器 追焚機能浴室 浴室乾燥機

担当者のコメント

平林 美津保

ぜひ一度見ていただきたい、「川口市青木二丁目戸建」です。お湯を沸かし直せる追い焚き機能付きです。平成29年11月築の物件です。鞄や靴なども収納可能なウォークインクロゼットです。当社では、川口市にある不動産情報を数多くご用意しております。お引っ越しをお考えの方は、この機会にぜひご連絡ください。

基本情報

販売戸数
-
総戸数
-
間取り / 詳細
3LDK
3LDK+2WIC+小屋裏収納
向き
建物面積(坪数)
97.28㎡(29.42坪)
土地面積(坪数)
61.01㎡(18.45坪)
建ぺい率 /
容積率
60%/200%
築年月
2017年11月(築8年)
土地権利
所有権
土地
(敷金 / 保証金)
- / -
建物構造
木造 / 3階建
傾斜地部分面積
-
路地状敷地
-
私道負担面積
-
セットバック
記載なし
高圧線下面積
-
施工会社
-
用途地域
準工業
地目 / 地勢
宅地 / 平坦
接道状況
-(東 公道 4.0m 間口 6.2m)
国土法届出要否
不要
都市計画
市街化区域
総区画数 /
販売区画数
-/-
現況
空家
その他
法令上の制限
-
取引態様
仲介
引渡し
即時
取引条件の
有効期限
2025年12月12日

設備条件

設備条件
  • リフォーム済 / 都市ガス / 公営水道 / 公共下水 / 食器洗い乾燥機 / 追焚機能浴室 / 浴室乾燥機 / 温水洗浄便座 / トイレ2ヶ所 / ウォークインクロゼット / 屋根裏収納
設備(その他)
    -

その他

物件番号
98832222
管理コード
-
建築確認番号
-
情報更新日
2025年11月28日
次回更新予定日
2025年12月12日
取扱会社
  • センチュリー21関建設
  • 東京都足立区保木間4丁目50-11 
  • TEL:03-5686-2100
  • 国土交通大臣 (2) 第9609号
    一級建築士事務所 東京都知事登録 第64533号
    特定建設業 東京都知事許可(特-3)第74229号
    (建築・土木・大工・とび土工・鋼構造物・解体・舗装・内装)
    一般建設業 東京都知事許可(般-1)第74229号 (塗装・防水)
    ISO ISO9001 ISO14001
  • (一社)東京都建築士事務所協会
    (社)全国宅地建物取引業協会
    (社)東京宅地建物取引業協会
備考
「川口市青木二丁目戸建」のここがイチオシ。室内の環境も良好な、住みよい中古の戸建て物件となっております。トイレが2ヶ所にある中古一戸建です。主に軽工業の工場やサービス施設等が立地する準工業地域。一戸建て購入は妥協したくないものですよね。川口市の川口元郷付近で住まい探しをするのであれば、知識豊富な当社スタッフまでご連絡ください。

支払いシミュレーション

月々の支払額
9.6
購入希望物件価格
万円
頭金
万円
金利
%
返済額(ボーナス1回分)
万円
返済期間

※ボーナスは自動で年2回分で計算されます。

近隣の物件

  1. 川口市弥平四丁目戸建

    川口市弥平4丁目

    4SLDK (104.32㎡)

    3,299万円

川口市青木二丁目戸建

川口市青木二丁目戸建

3,999万円

-

3LDK(97.28㎡)

お気軽にお問い合わせください

LINEからお問い合わせ 無料お問い合わせ

センチュリー21関建設

03-5686-2100

9:00~18:00

(休:水曜日)